深圳海上世界双玺软装设计方案分
2020-10-18 11:52:34 来源: 评论:0 阅读量:10
风格:现代轻奢风格
地址:深圳海上世界双玺
设计公司:深圳德派装饰& 8226;君尚软装艺术

风格:现代轻奢风格
地址:深圳海上世界双玺
设计公司:深圳德派装饰•君尚软装艺术
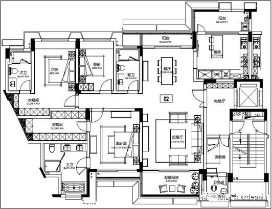
原始平面图

修改后平面图

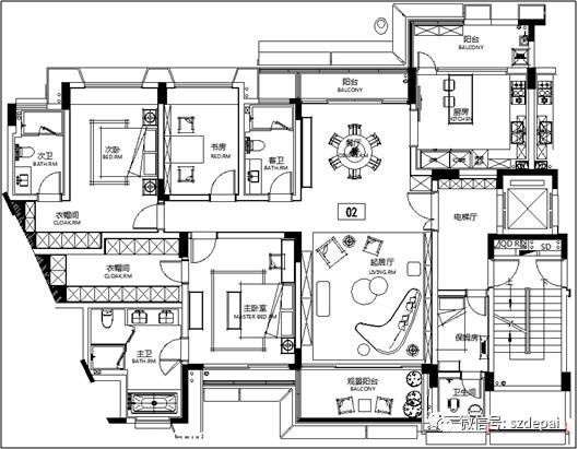
原始平面图
客厅局部调整

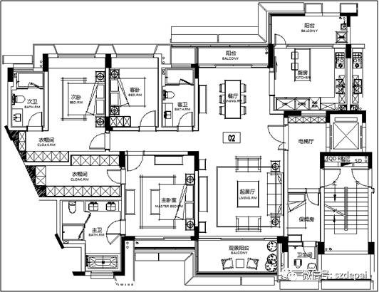
原始平面图

书房调整图
入户玄关现场照片

玄关平面设计图
玄关柜


客厅现场照片

客厅软装方案

多人沙发款式



客厅单椅及茶几


客厅两边书柜

餐厅现场照片


餐厅
餐厅设计方案


吧台软装设计

主卧现场照片

软装调整后
主卧局布调整方案

背景墙款式

电视背景墙
次卧实拍照


次卧方案

次卧方案

书房现场照
书房设计

厨房生活阳台现场照


观景阳台设计




生活阳台的收纳功能很重要


保姆房


相关热词搜索:
上一篇:案例欣赏—碧海云天A户型
下一篇:最后一页
分享到:
收藏
评论排行
- ·发廊美发洗发床CAD图块 理发店洗头床C...(73)
- ·台球桌cad 桌球台cad平面图块素材dwg ...(13)
- ·树根雕cad茶桌、茶几、凳子整套 cad平...(10)
- ·石膏线条cad 石膏线角线截面 cad图库(9)
- ·2014中国隔断行业十大排名排行榜(最新版)(8)
- ·【嘉昱装饰】影响卧室风水的五大忌讳,...(7)
- ·多人圆形餐桌cad立面图 别墅长形饭桌c...(7)
- ·cad户外儿童游乐设施 公园游乐设施dwg...(6)
- ·春季睡眠烦恼 交给斯林百兰温度智慧TM床垫(6)
- ·第四届贵州家装建材展览会(6)
- ·美容房床尺寸 美容床cad 床cad图纸...(6)
- ·室内设计cad模型- 圆床CAD模型 CAD里...(5)
- ·手绘墙教程需要准备那些步骤(5)
- ·中大型火锅店 配电系统图 疏散照明平...(5)
- ·六人用 欧式餐桌cad立面图块 餐桌欧式...(5)
- ·真石漆每平方价格多少钱?外墙真石漆平...(4)
- ·谷歌式办公如何打造?欧普商照助诺亚财...(4)
- ·前锋厨电携手潘晓婷跨界升级 厨电业迎...(4)
- ·五人、六人、八人餐桌椅 cad餐桌素材下...(3)
- ·欧式 石膏线剖面图 石膏线cad剖面图(3)
频道总排行
频道本月排行
- 1014邢台家装/邢台家装公司/装饰装修/室内设计
- 1011花园洋房装修怎样才好看,求花园洋房装修图
- 1010幼儿园墙面布置8张效果
- 109地中海风格
- 108洗衣房设计 洗衣房装修效果图
- 108豪华KTV装修效果图 以及 豪华KTV装修选材
- 1089款 斜顶阁楼装修效果图欣赏
- 107休闲吧 9款装修效果图与大家分享一下吧
- 106衣帽间门 卧室衣帽间门效果图
- 105蕉叶泰国餐厅 蕉叶泰国餐厅菜单及价目表



(
粤公网安备 44152302000001号