共和世家248㎡·一站式整装
2021-05-31 16:39:48 来源: 评论:0 阅读量:10
共和世家位于深圳福田区皇岗,本案例是一个老小区,面积248㎡,现代轻奢风项目地点:深圳市福田区服务模式:一站式整装项目面积:248㎡风格定位:现代轻奢整装团队:德派装饰&君尚软装&摩洛卡家居注重资源整合,自营工厂,拒绝中间商!相当于千家万户的长期团购,采
共和世家位于深圳福田区皇岗,本案例是一个老小区,面积248㎡,现代轻奢风
项目地点:深圳市福田区
服务模式:一站式整装
项目面积:248㎡
风格定位:现代轻奢
整装团队:德派装饰&君尚软装&摩洛卡家居
注重资源整合,自营工厂,拒绝中间商!相当于千家万户的长期团购,采购量大,在工厂那里可以为客户争取最大化的话语权,整体价低25%






MONARK·摩洛卡品牌推出整木定制系列,让整个房间有“Monarkhouse”的统一整体质感,提供整个房屋成套系列以及各类家具配件,这些具有功能性、多元化的模块系统,就是高端版本的全屋定制、一站式整装的诠释。
END
深圳市德派装饰设计工程有限公司

项目地点:深圳市福田区
服务模式:一站式整装
项目面积:248㎡
风格定位:现代轻奢
整装团队:德派装饰&君尚软装&摩洛卡家居
注重资源整合,自营工厂,拒绝中间商!相当于千家万户的长期团购,采购量大,在工厂那里可以为客户争取最大化的话语权,整体价低25%
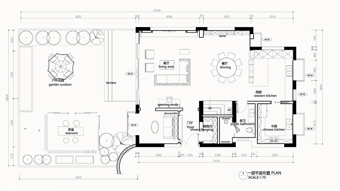
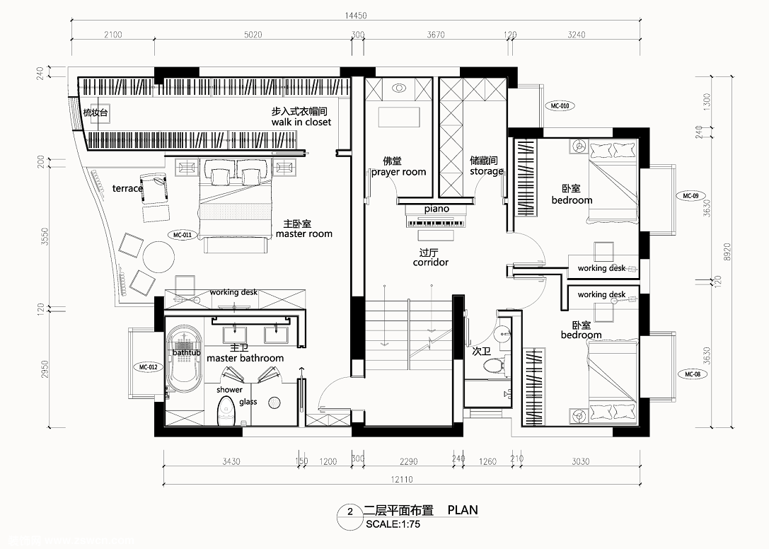
平面布置图



客厅
客厅电视墙两侧壁龛的设计+中间大理石背景墙,加入电子壁炉在电视下面,整体简洁对称的设计,显得更加现代高级。
餐厅
餐厅延续客厅的整体统一的格调,布置一台石材台面的圆餐桌,在白色餐椅环绕下,整体显得特别高级优雅
楼梯间
楼梯间白色的天花,黑色的墙壁,在冷暖色调中,采用黄铜色过度,在这样的色彩搭配下,给人舒适高级的感受
卧室
卧室床头墙以浅灰色软包为背景,布置白色布艺床,床尾位置还有一张床尾沙发,地面垫上米白格子地毯,整体空间感格外的精致高级
偏厅
偏厅在角落设计书架,下面布置台面,放上凳子,形成办公区域,旁边一张卡其色沙发椅,提供一个工作与休闲兼具的多功能区域
卫生间
卫生间大面积使用白色大理石,洁净而透亮,一整块大镜子的使用,将空间折射的更加宽敞大气
MONARK·摩洛卡品牌推出整木定制系列,让整个房间有“Monarkhouse”的统一整体质感,提供整个房屋成套系列以及各类家具配件,这些具有功能性、多元化的模块系统,就是高端版本的全屋定制、一站式整装的诠释。
END
——————
▼
▼
▼
深圳市德派装饰设计工程有限公司
&
君尚艺术软装设计
我们公司有一个4000平的一站式整装体验馆
有很多原创作品案例,还有很多家具实物可以看工艺细节,
包含装修用到的护墙板、衣柜、全屋木作定制等,
都有实物可以看,另有9000多件产品库
我们在深圳的南山科技园大族创新大厦,A座的11楼欢迎您来看看!
为业主呈现多种风格的个性品位
相关热词搜索:
上一篇:新锦安壹号公馆300㎡·硬装升级+全屋软装
下一篇:双玺三期287㎡·一站式整装
分享到:
收藏
评论排行
- ·发廊美发洗发床CAD图块 理发店洗头床C...(73)
- ·台球桌cad 桌球台cad平面图块素材dwg ...(13)
- ·树根雕cad茶桌、茶几、凳子整套 cad平...(10)
- ·石膏线条cad 石膏线角线截面 cad图库(9)
- ·2014中国隔断行业十大排名排行榜(最新版)(8)
- ·【嘉昱装饰】影响卧室风水的五大忌讳,...(7)
- ·多人圆形餐桌cad立面图 别墅长形饭桌c...(7)
- ·cad户外儿童游乐设施 公园游乐设施dwg...(6)
- ·春季睡眠烦恼 交给斯林百兰温度智慧TM床垫(6)
- ·第四届贵州家装建材展览会(6)
- ·美容房床尺寸 美容床cad 床cad图纸...(6)
- ·室内设计cad模型- 圆床CAD模型 CAD里...(5)
- ·手绘墙教程需要准备那些步骤(5)
- ·中大型火锅店 配电系统图 疏散照明平...(5)
- ·六人用 欧式餐桌cad立面图块 餐桌欧式...(5)
- ·真石漆每平方价格多少钱?外墙真石漆平...(4)
- ·谷歌式办公如何打造?欧普商照助诺亚财...(4)
- ·前锋厨电携手潘晓婷跨界升级 厨电业迎...(4)
- ·五人、六人、八人餐桌椅 cad餐桌素材下...(3)
- ·欧式 石膏线剖面图 石膏线cad剖面图(3)



(
粤公网安备 44152302000001号