双玺268㎡·一站式整装
2021-06-03 17:38:14 来源: 评论:0 阅读量:10
双玺位于深圳南山区,是蛇口片区的高端豪宅小区,精装交房,本案例面积268㎡项目地点:深圳南山交楼标准:精装交房项目面积:268㎡风格定位:现代轻奢整装团队:德派装饰&君尚软装&摩洛卡家居注重资源整合,自营工厂,拒绝中间商!相当于千家万户的长期团购,采购量
双玺位于深圳南山区,是蛇口片区的高端豪宅小区,精装交房,本案例面积268㎡

项目地点:深圳南山
交楼标准:精装交房
项目面积:268㎡
风格定位:现代轻奢
整装团队:德派装饰&君尚软装&摩洛卡家居
注重资源整合,自营工厂,拒绝中间商!相当于千家万户的长期团购,采购量大,在工厂那里可以为客户争取最大化的话语权,整体价低25%
白色是卧室的主色调,采用深蓝色作为跳跃色,丰富空间色彩,床头墙侧边装上精致吊灯,更显得现代紧致且高级实用
MONARK·摩洛卡品牌推出整木定制系列,让整个房间有“Monarkhouse”的统一整体质感,提供整个房屋成套系列以及各类家具配件,这些具有功能性、多元化的模块系统,就是高端版本的全屋定制、一站式整装的诠释。
END
深圳市德派装饰设计工程有限公司

项目地点:深圳南山
交楼标准:精装交房
项目面积:268㎡
风格定位:现代轻奢
整装团队:德派装饰&君尚软装&摩洛卡家居
注重资源整合,自营工厂,拒绝中间商!相当于千家万户的长期团购,采购量大,在工厂那里可以为客户争取最大化的话语权,整体价低25%
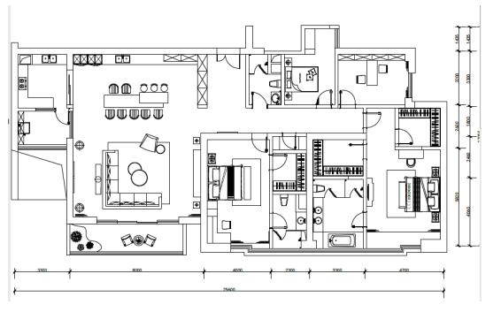
平面布置图


客厅

客厅空间以现代风的硬装基础,布置较为素雅的软装家具,整体呈现时尚又端庄大气的空间

主卧

白色是卧室的主色调,采用深蓝色作为跳跃色,丰富空间色彩,床头墙侧边装上精致吊灯,更显得现代紧致且高级实用

MONARK·摩洛卡品牌推出整木定制系列,让整个房间有“Monarkhouse”的统一整体质感,提供整个房屋成套系列以及各类家具配件,这些具有功能性、多元化的模块系统,就是高端版本的全屋定制、一站式整装的诠释。
END
——————
▼
▼
▼
深圳市德派装饰设计工程有限公司
&
君尚艺术软装设计

我们公司有一个4000平的一站式整装体验馆
有很多原创作品案例,还有很多家具实物可以看工艺细节,
包含装修用到的护墙板、衣柜、全屋木作定制等,
都有实物可以看,另有9000多件产品库
我们在深圳的南山科技园大族创新大厦,A座的11楼欢迎您来看看!
为业主呈现多种风格的个性品位
相关热词搜索:
上一篇:新锦安壹号公馆300㎡·硬装升级+全屋软装
下一篇:双玺三期287㎡·一站式整装
分享到:
收藏
评论排行
- ·发廊美发洗发床CAD图块 理发店洗头床C...(73)
- ·台球桌cad 桌球台cad平面图块素材dwg ...(13)
- ·树根雕cad茶桌、茶几、凳子整套 cad平...(10)
- ·石膏线条cad 石膏线角线截面 cad图库(9)
- ·2014中国隔断行业十大排名排行榜(最新版)(8)
- ·【嘉昱装饰】影响卧室风水的五大忌讳,...(7)
- ·多人圆形餐桌cad立面图 别墅长形饭桌c...(7)
- ·cad户外儿童游乐设施 公园游乐设施dwg...(6)
- ·春季睡眠烦恼 交给斯林百兰温度智慧TM床垫(6)
- ·第四届贵州家装建材展览会(6)
- ·美容房床尺寸 美容床cad 床cad图纸...(6)
- ·室内设计cad模型- 圆床CAD模型 CAD里...(5)
- ·手绘墙教程需要准备那些步骤(5)
- ·中大型火锅店 配电系统图 疏散照明平...(5)
- ·六人用 欧式餐桌cad立面图块 餐桌欧式...(5)
- ·真石漆每平方价格多少钱?外墙真石漆平...(4)
- ·谷歌式办公如何打造?欧普商照助诺亚财...(4)
- ·前锋厨电携手潘晓婷跨界升级 厨电业迎...(4)
- ·五人、六人、八人餐桌椅 cad餐桌素材下...(3)
- ·欧式 石膏线剖面图 石膏线cad剖面图(3)



(
粤公网安备 44152302000001号