深圳香山美墅三期云邸,深圳装修案例,户型图186平,现代中式轻奢风格,新房装修,毛坯房装修,一站式整装服务
2021-10-20 17:46:32 来源: 评论:0 阅读量:10
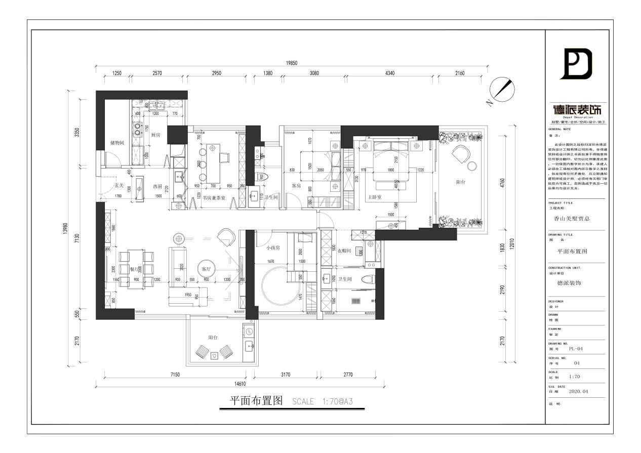
项目地点:香山美墅三期·云邸项目地点:深圳市南山区项目面积:186㎡交楼标准:毛坯房风格定位:现代中式轻奢风格服务模式:一站式整装整装团队:德派装饰&君尚软装&摩洛卡家居原始户型图平面设计图设计理念轻奢化的新中式风格,突破了传统中式可能过于厚重的诟病,
项目地点:香山美墅三期·云邸项目地点:深圳市南山区
项目面积:186㎡
交楼标准:毛坯房
风格定位:现代中式轻奢风格
服务模式:一站式整装
整装团队:德派装饰&君尚软装&摩洛卡家居
原始户型图

平面设计图

设计理念
“轻奢化”的新中式风格,突破了传统中式可能过于厚重的诟病,陈设不过于浮夸,色彩素雅和谐,婉约别致,突出优雅而低调的东方式奢华。
本案整体设计稳重和谐、充满秩序,干脆利落的线条配上简单的装饰元素,将现代语言与传统文化得以圆融合一。
材质分析

色彩分析

客餐厅
客餐厅空间通过陶瓷、茶器、盆栽等富有古典韵味的物件,结合现代定制家居,来丰富整个空间层次,现代感更强。用色彩诠释意境,低调素雅的颜色搭配,只以少量亮色作为点缀,并用灯光打造整体视觉的灵动和协调,让轻奢味儿的风灌满空间。

入户玄关—抹素颜红枝,几笔简练的线条,勾勒出无限意向,寥寥数笔,却春风十里。映入眼帘的金属隔断,大理石材质水吧台,搭配金属边框的长虹玻璃隔断,奠定了整个家温暖精致的基调。
半开放式茶室顺势而为,与客餐厅融为一体。背景墙博古架设计增添了一丝复古元素,不仅点缀空间而且有实用功能。当代感的艺术装饰,彰显居者的气质与品味。

客厅在高级灰的基础上,融入了棕咖、蓝色做为点缀,其本身柔和舒缓的气质搭配布艺质感在冷色与跳色之间起到了很好的协调和过渡作用,高级中又带着一温柔。
无电视的客厅设计,大块面的通顶大理石岩板,在视觉上扩大空间,山峰纹理犹如对城市远处山川胜景的临摹,漫步空间如同置身画中,浓厚的艺术气息令人浮想联翩。仿壁炉造型设计缓解大理石的冷调,使空间看起来更有温度,靠窗设计嵌入式柜体增强储物收纳功能,
餐厅长石材餐桌既可以容纳一家人用餐的欢声笑语,也可以兼具夫妻二人的浪漫小资。餐椅颜色则选用了与客厅沙发抱枕、单椅相同的色系,整体呼应整个空间。
窗外的景色化成一幅立面的画作;居者随着时光荏苒、四季变换;与家人在此共享窗外自然绿意所带来的美好生活景象。
主卧

主卧空间删繁就简,将中式元素与现代材质巧妙兼柔,金属线条装饰的衣柜,给人一种轻奢大气之感,吊灯、摆件融入中式元素设计,装饰画及地毯均饰以中式水墨山林间的纹案,虚实写意,别有一番清雅艺韵。整体设计优雅大气又不失传统文化精髓,隔绝一切喧嚣杂念,回归最真实的恬淡心境。
MONARK·摩洛卡品牌推出整木定制系列,让整个房间有“Monarkhouse”的统一整体质感,提供整个房屋成套系列以及各类家具配件,这些具有功能性、多元化的模块系统,就是高端版本的全屋定制、一站式整装的诠释。
END
——————
▼
▼
▼
深圳市德派装饰设计工程有限公司
&
君尚艺术软装设计


我们公司有一个4000平的一站式整装体验馆
有很多原创作品案例,还有很多家具实物可以看工艺细节,
包含装修用到的护墙板、衣柜、全屋木作定制等,
都有实物可以看,另有9000多件产品库
我们在深圳的南山科技园大族创新大厦,A座的11楼欢迎您来看看!
为业主呈现多种风格的个性品位
相关热词搜索:
上一篇:深圳金亨利,装修案例,户型图88平,现代法式轻奢,新房装修,一站式整装服务,拎包入住,德派装饰&君尚软装
下一篇:深圳银湖蓝山一期,户型图260平,新中式风格,新房装修,一站式整装服务
分享到:
收藏
评论排行
- ·发廊美发洗发床CAD图块 理发店洗头床C...(73)
- ·台球桌cad 桌球台cad平面图块素材dwg ...(13)
- ·树根雕cad茶桌、茶几、凳子整套 cad平...(10)
- ·石膏线条cad 石膏线角线截面 cad图库(9)
- ·2014中国隔断行业十大排名排行榜(最新版)(8)
- ·cad户外儿童游乐设施 公园游乐设施dwg...(7)
- ·【嘉昱装饰】影响卧室风水的五大忌讳,...(7)
- ·多人圆形餐桌cad立面图 别墅长形饭桌c...(7)
- ·春季睡眠烦恼 交给斯林百兰温度智慧TM床垫(6)
- ·第四届贵州家装建材展览会(6)
- ·美容房床尺寸 美容床cad 床cad图纸...(6)
- ·室内设计cad模型- 圆床CAD模型 CAD里...(5)
- ·手绘墙教程需要准备那些步骤(5)
- ·中大型火锅店 配电系统图 疏散照明平...(5)
- ·六人用 欧式餐桌cad立面图块 餐桌欧式...(5)
- ·真石漆每平方价格多少钱?外墙真石漆平...(4)
- ·谷歌式办公如何打造?欧普商照助诺亚财...(4)
- ·前锋厨电携手潘晓婷跨界升级 厨电业迎...(4)
- ·五人、六人、八人餐桌椅 cad餐桌素材下...(3)
- ·欧式 石膏线剖面图 石膏线cad剖面图(3)
频道总排行
频道本月排行
- 10262深圳金亨利,装修案例,户型图88平,现代法式轻奢,新房...
- 1035超市套图 超市装修设计效果图
- 10189款 斜顶阁楼装修效果图欣赏
- 109隐形门 隐形门效果图
- 108光明一号120㎡·一站式整装
- 108洗衣房设计 洗衣房装修效果图
- 108装修效果图 设计 工装效果
- 107金螳螂连续六年蝉联CBDA设计机构50强第一名
- 107花园洋房装修怎样才好看,求花园洋房装修图
- 107饭店装修设计效果图欣赏



(
粤公网安备 44152302000001号