深圳逸秀新村,装修案例,户型图800平,新中式风格,会所装修,一站式整装服务
2021-12-25 15:11:29 来源: 评论:0 阅读量:10
▼案例信息项目名称:逸秀新村会所项目地点:深圳市龙华区项目面积:800㎡项目需求:一站式整装风格定位:新中式风格整装团队:深圳德派装饰&君尚软装&摩洛卡家居▼设计理念本案会所装修,设计师以中式为基调,融合现代审美和会所艺术,将形式、质感、材料、光影、色
▼案例信息
项目名称:逸秀新村会所项目地点:深圳市龙华区
项目面积:800㎡
项目需求:一站式整装
风格定位:新中式风格
整装团队:深圳德派装饰&君尚软装&摩洛卡家居
▼设计理念 本案会所装修,设计师以中式为基调,融合现代审美和会所艺术,将形式、质感、材料、光影、色彩等要素汇聚在一起,创造一个极具辨识度的商业氛围,打造了一个沉稳庄重、温暖恬静的用餐品茗空间,似乎在这里,能够忘记往昔的浮躁感。一个新中式空间,既不乏中式之美,又融合了现代元素之美,或许这样的会所空间,看似简约雅致,却也刻画了每个人心中的美好。
装修前照片

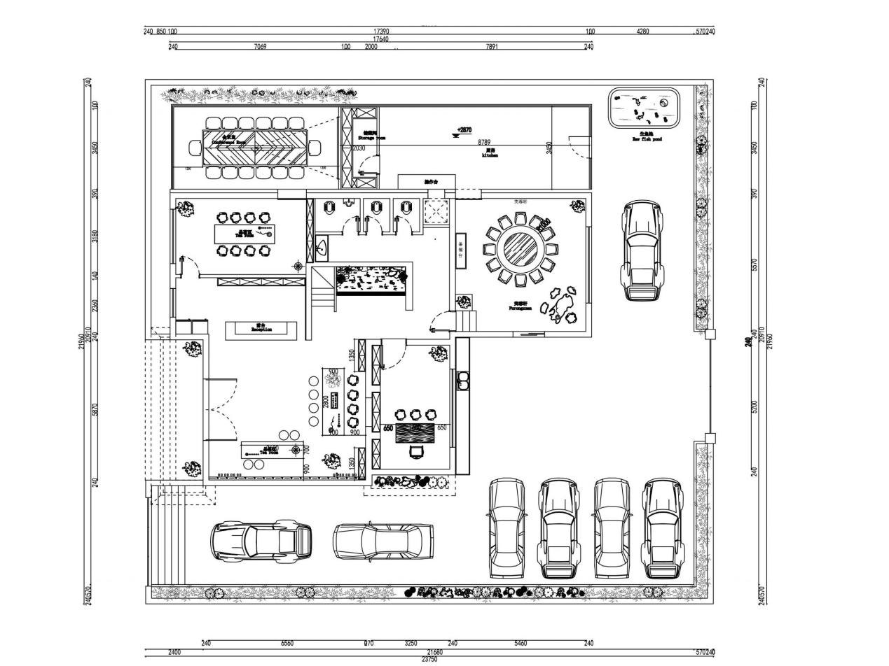
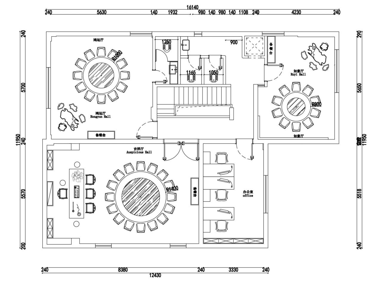
一楼
入户大厅
步入大厅开阔坦荡,海纳百川,有容乃大,可见一派中式传统之美。

▲效果图VS▼实景图

设计师在空间的打造之中,以大量的留白为特色,中式茶桌茶墩和茶具摆件结合水墨山水装饰元素的背景墙、挂画,并且通过极具现代艺术感的吊灯,让空间既有水墨氤氲之美,又不乏雪花白蝶飞舞之感,空间之内诗意满满,营造出禅意悠然、意趣盎然之景。
家人围坐,灯火可亲。中国圆,是中国人特有的团圆符号,象征着圆融、圆满,圆弧是中式风格的灵魂,在设计环节中运用弧的元素,隐约从户型中透出造型,禅意精致的细节摆设,整体空间相辅相成,意境高远。
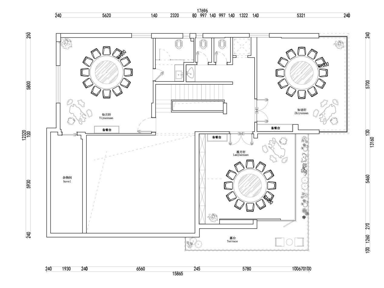
二楼餐厅

▲效果图VS▼实景图

家具桌椅精致典雅,展示柜陈列上书籍饰品,加上现代吊灯的修饰,山林壁画郁郁葱葱,与整体空间融合在一起,古典迷醉,意蕴悠长。

▲效果图VS▼实景图

以灰白色格调为主,典雅大气,现代风的餐桌椅加入了软质的餐椅坐垫和靠背,这种舒适惬意的家具搭配,显得更加的简约雅致,整个用餐空间,似有人间烟火气息。

▲效果图VS▼实景图

米白+金黄构成室内最主要的色彩,刚直的线条,柔软的布艺,相互交织融合,感觉更加现代大气,且通透美观。
三楼餐厅
三楼空间整体用色淡雅,浅灰白+原木色大面积铺陈,摈弃纯中式复杂琐碎的雕刻,以简约现代的手法赋予全新的感受,让用餐空间变得格外恬静温馨。

▲效果图VS▼实景图

踏入餐厅,细细品味,点睛之笔在背景墙上,在山水绵延意境之中,金色云雾缭绕,恰有一派尽显“明月出天山,苍茫云海间”的辽阔感。

品茗区简约的桌椅,银杏叶装饰的蓝色背景墙,配以盆景绿植为点缀,接近大自然。
整个空间以一种满而不溢,疏而不空的姿态呈现。

▲效果图VS▼实景图

现代风的餐桌椅辅以一些清透、灵动的山水画点缀其中,侧边的餐边柜和装饰花瓶淡而雅,简而精,都能让人感受到艺术的魅力,一切皆是中式美。

▲效果图VS▼实景图

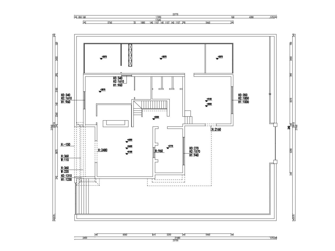
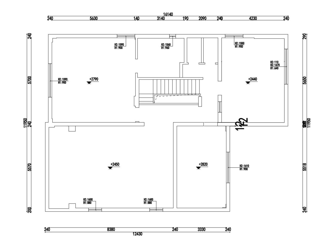
一楼原始户型

平面布置图

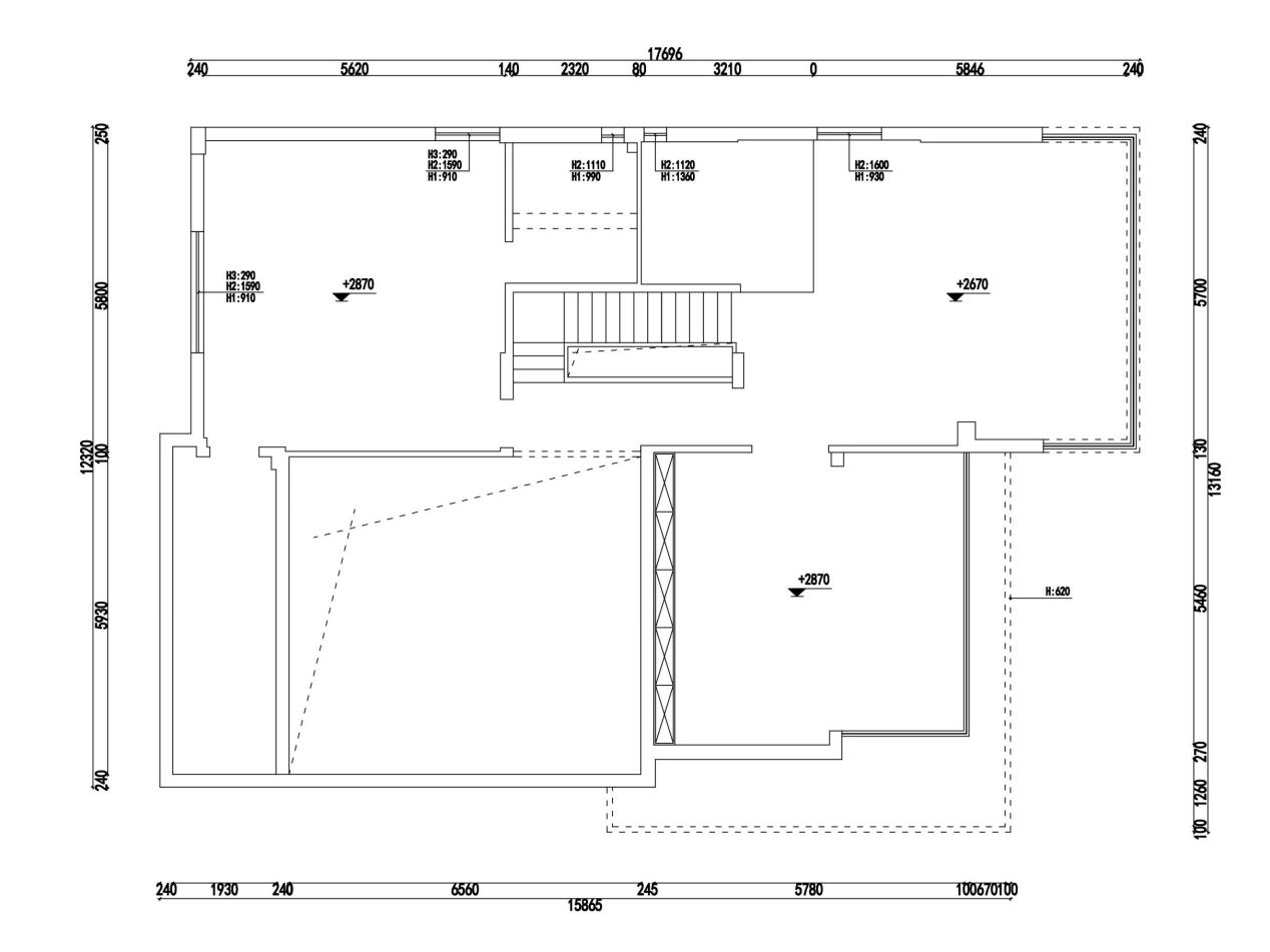
二楼原始户型

平面布置图

三楼原始户型

平面布置图

MONARK·摩洛卡品牌推出整木定制系列,让整个房间有“Monarkhouse”的统一整体质感,提供整个房屋成套系列以及各类家具配件,这些具有功能性、多元化的模块系统,就是高端版本的全屋定制、一站式整装的诠释。
END
——————
▼
▼
▼
深圳市德派装饰设计工程有限公司
&
君尚艺术软装设计


我们公司有一个4000平的一站式整装体验馆
有很多原创作品案例,还有很多家具实物可以看工艺细节,
包含装修用到的护墙板、衣柜、全屋木作定制等,
都有实物可以看,另有9000多件产品库
我们在深圳的南山科技园大族创新大厦,A座的11楼欢迎您来看看!
为业主呈现多种风格的个性品位
相关热词搜索:
上一篇:深圳新天鹅堡二期,户型图130平,清新简美风格,毛坯房装修,一站式整装服务
下一篇:深圳新锦安壹号公馆,户型图300平,现代轻奢风格,毛坯房装修,一站式整装服务
分享到:
收藏
评论排行
- ·发廊美发洗发床CAD图块 理发店洗头床C...(73)
- ·台球桌cad 桌球台cad平面图块素材dwg ...(13)
- ·树根雕cad茶桌、茶几、凳子整套 cad平...(10)
- ·石膏线条cad 石膏线角线截面 cad图库(9)
- ·2014中国隔断行业十大排名排行榜(最新版)(8)
- ·cad户外儿童游乐设施 公园游乐设施dwg...(7)
- ·【嘉昱装饰】影响卧室风水的五大忌讳,...(7)
- ·多人圆形餐桌cad立面图 别墅长形饭桌c...(7)
- ·春季睡眠烦恼 交给斯林百兰温度智慧TM床垫(6)
- ·第四届贵州家装建材展览会(6)
- ·美容房床尺寸 美容床cad 床cad图纸...(6)
- ·室内设计cad模型- 圆床CAD模型 CAD里...(5)
- ·手绘墙教程需要准备那些步骤(5)
- ·中大型火锅店 配电系统图 疏散照明平...(5)
- ·六人用 欧式餐桌cad立面图块 餐桌欧式...(5)
- ·真石漆每平方价格多少钱?外墙真石漆平...(4)
- ·谷歌式办公如何打造?欧普商照助诺亚财...(4)
- ·前锋厨电携手潘晓婷跨界升级 厨电业迎...(4)
- ·五人、六人、八人餐桌椅 cad餐桌素材下...(3)
- ·欧式 石膏线剖面图 石膏线cad剖面图(3)
频道总排行
频道本月排行
- 10262深圳金亨利,装修案例,户型图88平,现代法式轻奢,新房...
- 1035超市套图 超市装修设计效果图
- 10189款 斜顶阁楼装修效果图欣赏
- 109隐形门 隐形门效果图
- 108光明一号120㎡·一站式整装
- 108洗衣房设计 洗衣房装修效果图
- 108装修效果图 设计 工装效果
- 107金螳螂连续六年蝉联CBDA设计机构50强第一名
- 107花园洋房装修怎样才好看,求花园洋房装修图
- 107饭店装修设计效果图欣赏



(
粤公网安备 44152302000001号